3-401
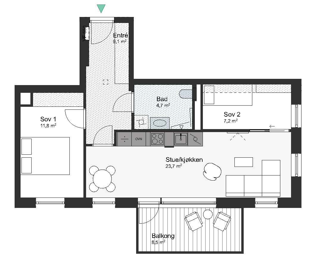
Hjørneleilighet med østvendt privat balkong. Leiligheten inneholder åpen stue/kjøkkenløsning, 2 soverom, et bad og entré med plass til oppbevaring. Mulighet for å kjøpe hvitevarer og garasjeplass med ladestasjon i kjeller.
Leilighetsnr.
Status
BRA m²
BRA-i m²
Balkong (TBA m²)
Soverom
Etasje
Garasjeplass
Tilvalg mot pristillegg
Innskudd
Fellesgjeld
Omkostninger
Totalpris inkl. omkostninger
Felleskostnader år 1-5
Felleskostnader fra år 6
Tilvalg: Garasjeplass inkl ladestasjon
350 000
Innskudd
Den andelen av totalprisen du skal finansiere, som ikke dekkes av fellesgjeld.
Fellesgjeld
Fellesgjelden er et lån vi har forhandlet fram for alle boligene samlet. Du er ansvarlig for den delen av fellesgjelden som er knyttet til din bolig.
Omkostninger
Dekker offentlige avgifter, tinglysingsgebyr m.m.
Totalprisen for boligen
Sum av innskudd, fellesgjeld og omkostninger.
Felleskostnader år 1–5
Dekker renter på din andel av fellesgjelden samt driftskostnadene til borettslaget.
Felleskostnadene er beregnet med gjeldende rente. Felleskostnadene kan reduseres hvis du benytter IN-ordning.
Felleskostnader fra år 6
Etter den avdragsfrie perioden starter nedbetalingen av fellesgjelden til borettslaget. Felleskostnadene vil da dekke avdrag og renter på din andel av fellesgjelden, samt driftskostnadene til borettslaget.
Felleskostnadene er beregnet med gjeldende rente. Felleskostnadene kan reduseres hvis du benytter IN-ordning.
Lurer du på noe mer, se våre ofte stilte spørsmål.
Bildene er kun ment som illustrasjon, avvik vil forekomme
Interiørstil Mynte
I denne leiligheten leveres Mynte som standard. Stue og kjøkken blir malt i en behagelig mørkegrønn tone, som skaper ro og balanse. Øvrige rom leveres i en varm, beige nyanse. Kjøkkenet leveres fra HTH med sorte fronter, og tidløst 1-stav lys eikeparkett på gulvene.
